Property Detail

1650 Micheltorena Unit C

Los Angeles CA 90026

$1,175,000

Status: Active

Property Details

Description

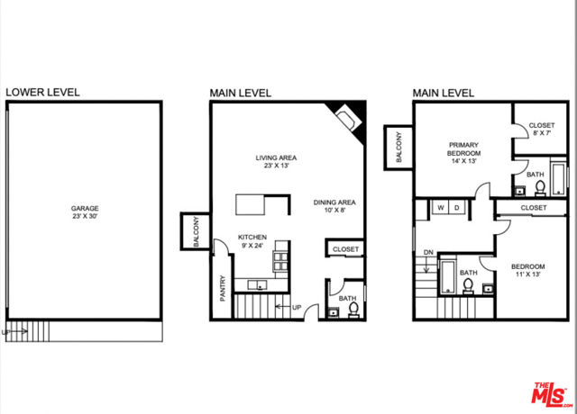
A truly special Silver Lake townhome offering the perfect blend of space, style, and location. This light-filled two-level residence features soaring ceilings, sunny southwest exposure, oak hardwood floors, and curated finishes that bring warmth throughout.The main level is open and airy, designed for effortless living with bright living and dining spaces centered around a decorative fireplace. The kitchen is thoughtfully designed with an organic feel and a generous walk-in pantry. Step out onto the balcony for morning coffee or golden-hour wine.Upstairs, the primary suite is bathed in natural light with sweeping views and a large walk-in closet. A second spacious bedroom with an en-suite bath, along with a roomy laundry area, completes the upper level.Downstairs, an oversized private two-car garage offers incredible bonus potential think studio, home gym, workshop, or gear room.Set within a gated boutique community of only five units with guest parking, you're right in the heart of Silver Lake. Just moments from Dayglow Coffee, Night + Market, San-t and Bar Seco, Erewhon, the Farmers Market, and located in the coveted Micheltorena school district, it truly doesn't get better than this.

Map Location

Listing provided courtesy of Nerissa Minnick of Compass. Last updated 2026-02-01 09:20:47.000000. Listing information © 2026 CRMLS.