Property Detail

5331 Cole Street

San Diego CA 92117

$1,398,000

Status: Active

Property Details

Description

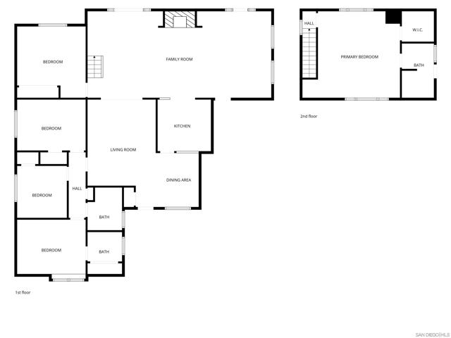
Beautiful move-in ready home located in the heart of the desirable Clairemont Community! This 5 Bedroom, 2.5 Bath Property features Repainted Interior and Exterior, New Vinyl Plank Flooring, Stainless Appliances and Skylight at Kitchen, Upgraded Bathrooms, Dining Area and Large Living Room with Brick Fireplace, Full Bedroom / Bath on Second Level with access to an Outdoor Deck, Dual-Paned Windows and Upgraded Exterior Doors, Oversized 1-Car Garage with Epoxy Flooring and Newer Garage Door Opener. Outside - Low Maintenance Landscaping at the Front, a Large and Private Back Patio, and yard with newly planted grass and new sprinklers will give hours of recreation and relaxation. The matching outdoor shed provides a tremendous amount of additional storage. Close to Freeway Access, Shopping and Schools.

Map Location

Listing provided courtesy of Brian Habib of Brian Habib. Last updated 2026-03-19 08:18:47.000000. Listing information © 2026 CRMLS.